
Режим циркуляции с подмесом свежего воздуха (зимний режим)

Осушение воздуха осуществляется в регулируемом режиме приточно-вытяжной вентиляции с подачей свежего и утилизацией части отработанного воздуха. Многократное осушение воздуха происходит путем охлаждения воздуха из плавательного бассейна в блоке пластинчатого рекуператора. Смешивание с более холодным приточным воздухом улучшает охлаждающий эффект в блоке пластинчатого рекуператора и значительно увеличивает осушение воздуха. В холодные месяцы открытие клапанов приточного / вытяжного воздуха регулируется в пределах от 20 до 99%.
Осушение с использованием 100% подачи и удаления воздуха (летний режим)

При благоприятных внешних условиях установка работает на 100% наружном воздухе. Рециркуляционная заслонка закрыта, и осушение происходит за счёт термогигрометрических условий наружного воздуха. Если температура поступающего воздуха еще не достигла заданного значения, установленного на пульте управления, она повышается до требуемого уровня с помощью жидкостного калорифера.
Прогрев помещения (опциональный режим)

Установка работает в режиме 100% рециркуляции без забора воздуха извне. Воздух в помещении бассейна рециркулируется и нагревается жидкостным калорифером, работающим от внешнего источника энергии (например, котла). Контур теплового насоса установки отключается, а вентиляторы работают на номинальную мощность. Этот режим используется во время прогрева помещения при старте установки.
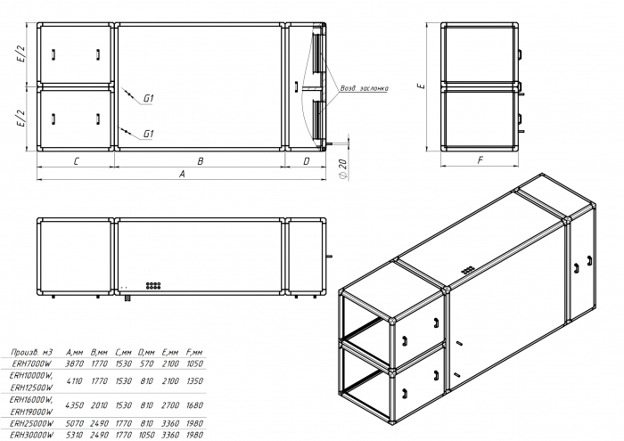
Номинальная производительность устройства, (м*/ч/Па) | 7000/700 |
Ориентировочная площадь зеркала воды | 210 кв. м. |
Эффективность рекуператора, % | 75 |
Подача свежего воздуха % | 0-100 |
Номинальное электропотребление приточного вентилятора | 3.3 кВт |
Сила тока | 6.6 А |
Номинальное электропотребление вытяжного вентилятора | 3.3 кВт |
Сила тока | 6.6 А |
Мощность воздухонагревателя (80/60°С) | 58,0 |
Расход воды, м³/ч | 2,6 |
Падение давления, кПа | 11 |
Питание | 380В 3Ф |
Номинальное электропотребление устройства | 6.6 кВт |
Вес | 770 кг |
График показывает аэродинамическую характеристику установки (расход воздуха Q vs создаваемое давление P). Переключатель сверху меняет класс фильтра — G4+F7 (более тонкая 2-ступенчатая) теряет ~10–20% давления.