
Режим циркуляции с подмесом свежего воздуха (зимний режим)

Режим циркуляции с подмесом свежего воздуха и тепловым насосом (опциональный зимний режим)

В определённых климатических условиях или в целях энергоэффективности устройство минимизирует приток наружного воздуха и активирует контур теплового насоса. Часть забираемого из помещения воздуха циркулирует после испарителя, где происходит рекуперация скрытой и явной теплоты (таким образом, происходит осушка воздуха). Затем воздух поступает в конденсатор, обеспечивая подачу тёплого осушенного воздуха в помещение с чрезвычайно высокой энергоэффективностью. Некоторая (переменная) часть воздушного потока удаляется и заменяется наружным воздухом, обеспечивая соответствие помещения бассейна гигиеническим нормам. Если температура воздуха недостаточно высокая, задействуется водяной или электрический нагреватель. Данный режим хорошо подходит для объектов, не имеющих газоснабжения, а также для коммерческих бассейнов.
Осушение с использованием 100% подачи и удаления воздуха (летний режим)

При благоприятных внешних условиях установка работает на 100% наружном воздухе. Рециркуляционная заслонка закрыта, и осушение происходит за счёт термогигрометрических условий наружного воздуха. В этом режиме контур теплового насоса используется в качестве вторичной системы для рекуперации тепла, отводимого из помещения, и рекуперации явной и скрытой теплоты в испарителе, подается осушённый воздух в помещение с чрезвычайно высокой энергоэффективностью. Если температура поступающего воздуха еще не достигла заданного значения, установленного на пульте управления, она повышается до требуемого уровня с помощью водяного калорифера.
Осушение с использованием 100% подачи / удаления воздуха и теплового насоса (летний режим)

При высоких температурах наружного воздуха для осушения используется режим 100 % вентиляции приточного / вытяжного воздуха с тепловым насосом. Осушение воздуха происходит путем охлаждения на испарителе теплового насоса. Если температура поступающего воздуха еще не достигла заданного значения, установленного на пульте управления, она повышается до требуемого уровня с помощью водяного калорифера.
Прогрев помещения (опциональный режим)

Установка работает в режиме 100% рециркуляции без забора воздуха извне. Воздух в помещении бассейна рециркулируется и нагревается водяным калорифером, работающим от внешнего источника энергии (например, котла). Контур теплового насоса установки отключается, а вентиляторы работают на номинальную мощность. Этот режим используется во время прогрева помещения при старте установки.
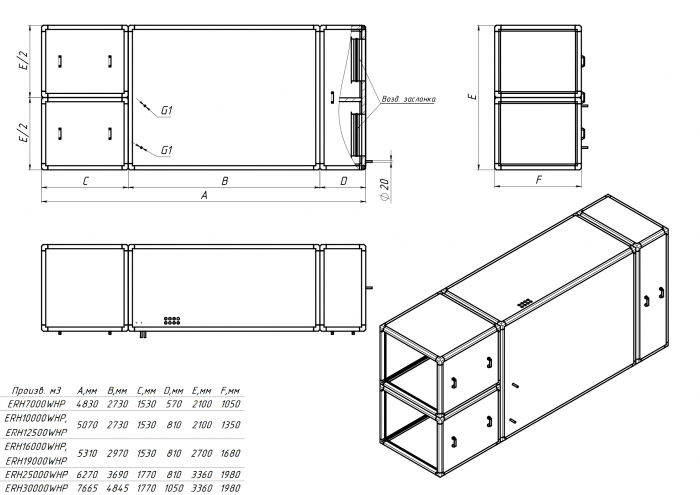
Номинальная производительность устройства, (м*/ч/Па) | 25000/500 |
Ориентировочная площадь зеркала воды | 610 кв. м. |
Эффективность рекуператора, % | 75 |
Осушение (30°С/60%/r.h.) кг/ч | 55,9 |
Осушение по стандарту VDI 2089 кг/ч | 159,0 |
Подача свежего воздуха % | 0-100 |
Номинальное электропотребление приточного вентилятора | 11.2 кВт |
Сила тока | 16.2 А |
Номинальное электропотребление вытяжного вентилятора | 11.2 кВт |
Сила тока | 16.2 А |
Номинальное электропотребление компрессора | 14.4 кВт |
Мощность воздухонагревателя (80/60°С) | 226,0 |
Расход воды, м³/ч | 9,8 |
Падение давления, кПа | 24 |
Питание | 380В 3Ф |
Номинальное электропотребление устройства | 36.8 кВт |
Вес | 2480 кг |